Immobilienangebote - Eigentumswohnungen
Aktuelle Angebote zum Eigentumswohnungenkauf
Neu renovierte großzügige 3-ZI:- ETW. mit Stellplatz, Einbauküche und 2 überdachte Balkone m. phantastischer Fernsicht in 37154 Northeim / Nordstadt
Grundstücksgröße: 1.320 m² Eigentum
Baujahr: 1980 / 2010 und 2025 modernisiert
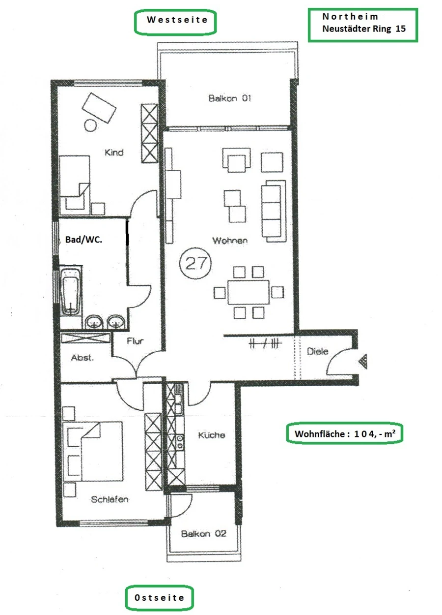
Wohnfläche: 104 m² (3. 0G.- Westseite )
Beziehbar: Wohnung ist frei
Energieausweis: 175,74 kWh (m²*a) F
Kaufpreis: € 145.000 , -
Diese großzügige helle, neu renovierte " 3-ZI:- ETW. mit 2 Balkonen u. Stellplatz " befindet sich im " 3. 0bergeschoss- Westseite" eines 1980 erstellten voll unterkellerten Mehrfamilienhauses mit Fahrstuhl.Modernisierungen wurden 2010 und 2025 durchgeführt. Die zu verkaufende Whg. befindet sich in absolut ruhiger nördlicher Hangwohnlage mi hervorragenden Fernblick über die Stadt.
Die Wohnung ist wie folgt aufgeteilt:
Kellerraum, Waschraum
3. 0bergeschoss - Westseite:
Flur u. Diele, Küche, Kinderzimmer m. kl. überdachten Balkon (Ostseite) Abstellraum, großz- Bad/WC, Schlafzimmer, Flur, Wohnzimmer mit großzügigen überdachten Balkon (Westseite)
Solide Ausstattungen sind gegeben:
PKW- Abstellplatz, Parkett-Fliesenfußböden, Holzfenster mit Isoverglasungen, Blockheizkraftwerk mit Gas- Brennwerttechnik u. Fußbodenheizung großz.- Bad/WC., überdachte geflieste Balkons mit Fernsicht.
Fahrstuhl im Haus.
"Instandhaltungsrücklage von € 43.000"
"Wohngeld: 578,- p.M."
Provision: Für Nachweis oder Vermittlung : 4,76 % incl. MWST. vom Käufer bei Vertragsabschluß.
